



































· casa vaciada ·
refugio estacional en Soto de Sepúlveda, Segovia
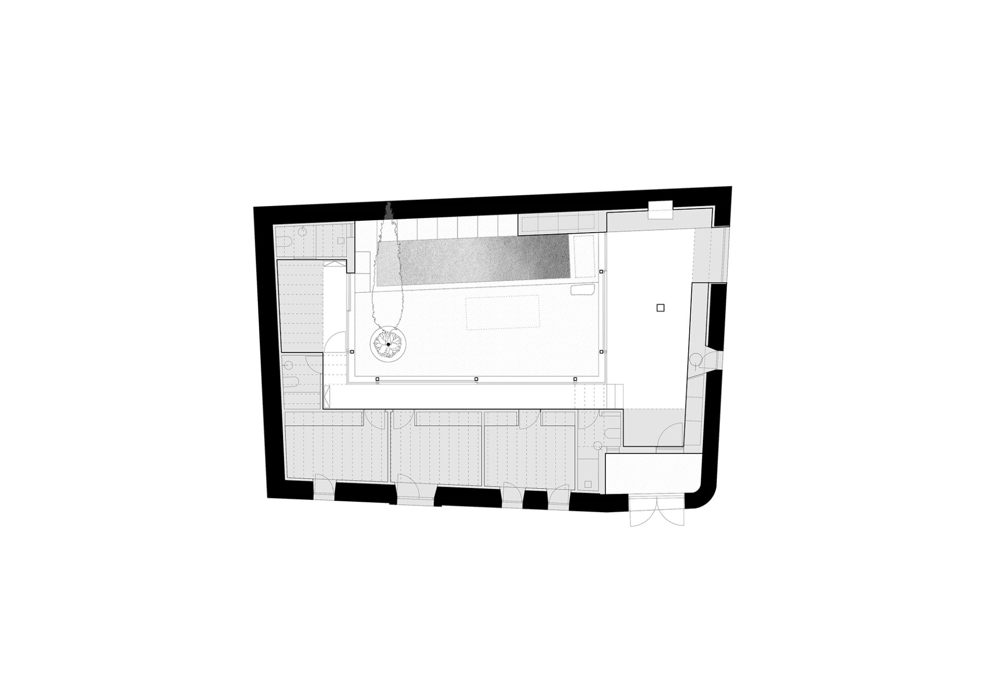
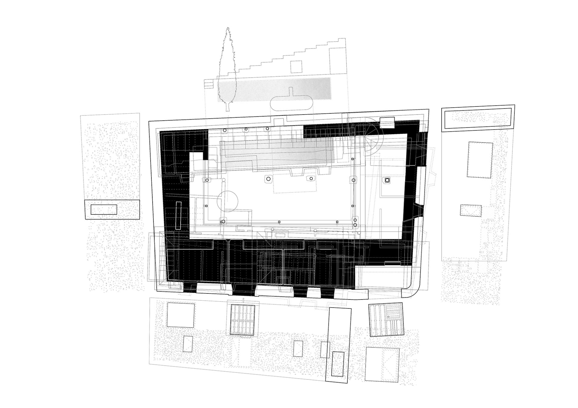
Ubicada en una pequeña población de los montes de Riaza en Segovia, la vivienda se inserta en los vestigios de un antiguo establo de piedra tosca y tapial, cuyas cubiertas y particiones interiores se encontraban en un estado acusado de ruina. Tras vaciar el volumen construido, el proyecto adopta la preexistencia de la envolvente como fundamento y límite, renunciando a reproducir la ocupación total original para, en su lugar, liberar un espacio central destinado a articular la nueva vida doméstica. Este vacío, en el que se ubica una pequeña alberca sobre la traza de un antiguo abrevadero, garantiza un espacio exterior, luz y aire, incluso ante un futuro en el que las parcelas colindantes al oeste y al sur puedan quedar edificadas. La estrategia espacial del proyecto se circunscribe al vaciado y a la consolidación de ese mismo vacío, configurándolo como un patio, un paisaje interior que busca el cielo a través de sus aberturas.
La nueva arquitectura se organiza en torno al patio con tres pabellones a dos aguas, articulados entre sí mediante lucernarios, y generando un nuevo zaguán a cielo abierto desde la calle, dando acceso a la primera nave en la que se desarrolla el estar. Los nuevos volúmenes se ensamblan sobre los muros existentes, generando escalonamientos que varían en cada fachada y que permiten reconocer desde el exterior la nueva ordenación interna. Cada pabellón concluye en un lucernario vinculado a los espacios bajocubierta, siendo el tercero de ellos una torre hueca que sirve como mirador del paisaje, y actúa como reflejo de la cercana espadaña de una iglesia románica.
El nuevo patio se rodea de un deambulatorio permeable con carpinterías de grandes dimensiones que distribuye el acceso a las habitaciones y, mediante escaleras escamoteables, a los espacios bajocubierta. La sala de estar genera un cruce de miradas entre el paisaje exterior y el patio interior a través de un gran hueco practicado en el muro de tapial, que para su conservación, se reviste de mortero cal en las zonas más deterioradas. El proyecto construye un código material basado en la continuidad entre lo existente y lo nuevo: los muros de piedra y tapial se consolidan mediante el uso de la cal aplicada con un rejuntado característico de la zona, que se extiende a las fachadas nuevas de termoarcilla generando una superficie homogénea. La diferencia entre épocas se percibe por estratos más que por discontinuidades, mediante la técnica de aplicación del mismo material.
La nueva arquitectura se erigen mediante una estructura mixta de hormigón, madera y acero, diseñada para trabajar conjuntamente con los muros conservados, de modo que permita corregir asentamientos diferenciales, desplomes y pérdidas de material en las zonas más erosionadas. El proyecto busca potenciar a través de sus espacios la relación de la vivienda con la naturaleza, los fenómenos climáticos —sol, lluvia, nieve, temperaturas extremas— así como los sensoriales —silencio, descontaminación lumínica, calidad del aire. Se desarrolla un sistema bioclimático mediante estrategias pasivas como el uso de una solera radiante en el contacto con el suelo, la continuidad de la envolvente aislante interior, el almacenaje del agua de lluvia, el efecto chimenea de la doble altura de las naves de habitaciones con el patio abierto, etc. A su vez, la alberca longitudinal actúa como moderador higrotérmico, suavizando el microclima del espacio exterior y aportando una atmósfera doméstica vinculada a los ritmos estacionales del lugar.
La casa actúa como un dispositivo de observación en los límites de un territorio vaciado, reinterpretando las ruinas de una construcción rural mediante nuevas aberturas y miradores elevados orientados al paisaje de sierra que construyen un refugio estacional.